当前位置:首页 > 辽阳县首山法恩莎卫浴瓷砖 > 辽阳首山装修故事 > 详细内容
装修故事 60平小屋也有大风采
发布时间:2013/9/30  阅读次数:577  字体大小: 【】 【】【

当你一脚进入我的屋子,当我告诉你脚下的土地就是我将来要睡觉的一小块宝地的时候,你会怎样惊讶的表情,对,就是这个,超小型的房屋,不过小房型也有大智慧。至少每月物业管理费省下大半,还有装修费用也会便宜很多。顶着低调奢华的设计风格,螺蛳壳里做道场,倒也把钱花得实在。大房子平凡装修,小房子,精致装修,在有限的资金利用下,你会怎么考虑?

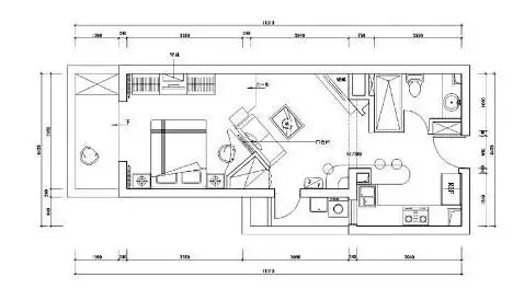
一共就六十个小平房的房子,就最基本的一个的餐厅兼客厅,一个卧室,还有一个卫生间半个厨房就组成了能够保障生活的我的家。

房间的布置是这样的,车厢式的一室一厅,前后位置,进门就是厨的房,右手边是浴室。

再进去就是客厅,客厅的左手边有一个很小的工作阳台,现在用来做洗衣间。客厅进去就是卧室了,最外面是阳台。整个房子可以说光线是个问题,所以设计的师就把客厅和进门之间的墙壁敲掉了,这样两间打通,地方就显得大了很多,另外,怎么利用墙角,也是一个大问题,所以有处墙角做了倾斜的储藏柜,这样就利用好这个直角了。


鞋柜过来一点,就是卫浴间的门,没有采用厚重的实的木,而是现代质感的玻璃磨砂。

房子小,所以用料就毫不马虎了,硬装修五万,电器(的冰箱、彩电、空调、洗衣机)两万元,家具(床、床头柜两个、五斗橱、两门衣柜)一万两千多,零零碎碎也要七八万,赶得上别人三房或者两房的装修了。

刚进门,便可看见鞋柜,鞋柜做成上下开门式,由上而下的射灯,显示出白色漆面的典雅,而鞋柜旁边就是卫生间的玻璃门,蓝色,有种厚重感,也有不同材料搭的配后的美感。

一入门   便可看见精致的吧台和开放式的小厨房,真的是螺蛳壳里做道场。

厨房设计费用4800元,整体橱柜5000元,的脱排、灶头、保洁柜共5000元,品牌弗兰卡。水槽买来1680元,包括龙头和滤水篮,并送了一套保温塑料制品。

整体橱柜品牌是法拉第,当时团购价是990元/米,上下柜。台面选用国产,440元/米。

厨房当时的设计理念是因为地方小,所以建造成敞开式的的,这样以后家里都不太可能有煎、炒、炸之类的烹调方式了,有吧台,天天喝酒倒是不错!


卫生间的马桶、台上盆、浴缸共计4200元,都是美标。浴缸龙头和台盆龙头是高仪的,号称卫浴建材中的劳斯莱斯。面砖和地砖6000块,包括了厨房的面砖、地砖,的塞上?印象品牌。

厨房、卫浴还有一条小过道,都在开门的时候立刻体现,所以这里就是装修浓墨重彩的一笔,并且因为进门的地方光线不良,所以更需要人工光照的惠顾,并且为了视的觉上的延伸,小型的餐桌也做成了吧台式,并往客厅方向发展,客厅与会餐部位,既相互独立,又有功能上的默契。

客厅   从餐厅拍摄过去的角度,可见到呈对角线的位置的沙发。


从卧室看客厅的情景   一片纱帷,就是仅有的隐的私照顾,像阿拉伯女郎,神秘而又性感。

走入客厅,原先右侧有个半开放储藏空间,设计师别处心裁的将其外面的一面敲除,而把储藏空间设置在斜面电视墙的后面,这样对角线沙发和电视墙的布置,更好的的利用了利用了狭小的空间,也为餐厅吧台的延伸留出了空间,又不减少储藏空间,并且视觉上,客厅也显得大了许多,这是设计上一个非常高明的地方。

而原先客厅和卧室的隔墙则彻底打掉,将卧室的的界限往后推,留出更多的空间给对角线沙发电视区域,沙发后面的柜子又起到了隔墙的作用。

卧室和客厅的分割线是由三部分组成的,第一部分是床头的储藏柜,这个柜子由客厅内开启,门做成镜门,卧室的一面则装置了展示架,充分达到美观和实用展示的效果。第二部分,沙发与帷帘,作为一个并不完全闭密的私有空间,用一张帘幕来达到若有若现神秘诱惑的风情的,也符合我们新婚夫妻的生活情调,第三部分,作为卧室和客厅的彻底上的区分,并且为了显示卧室是这个小房间最宝贵的珍室,卧室的地板特地做的比外面要高,这样整体卧室的气质就被抬升了,显示了床为主题的新婚燕尔夫妇的协和生活

我要评论
  • 匿名发表
  • [添加到收藏夹]
  • 发表评论:(匿名发表无需登录,已登录用户可直接发表。) 登录状态:未登录
最新评论
所有评论[0]
    暂无已审核评论!
任何透过首山创业网的网页而链接及得到之资讯、产品及服务均系用户自行发布,首山创业网对其合法性概不负责,亦不承担任何法律责任。
古典文学

本站由中网提供网站空间与技术支持,马上申请与我一样的网站

 收录查询                                                      网站管理 辽ICP备10006314号